Castle View Court, Sheriff Hutton (Orchard House) £925,000 (Freehold) - Ref: 2748
5 3 2
Overview
Orchard House

Book your viewing today....

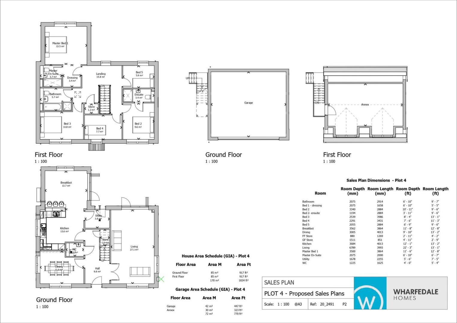
LAYOUT
This impressive new-build home comprises five sizeable bedrooms with two ensuites and a dressing room to the master bedroom. The ground floor features a large open-plan kitchen/breakfast room with bi-folding doors opening onto the garden, together with a handy utility room with external access. There’s also a separate dining room for family meals and entertaining as well as a large separate living room with a further set of bi-folding doors leading onto the expansive gardens. There is the additional benefit of a double detached garage with an externally accessed room above, offering potential for excellent office space, gym or annex.

SPECIFICATION
The home is built to the highest standard and finished to an exceptional specification that exceeds expectations of new-build homes.

Just a few examples of this include, a designer shaker-style kitchen, Quartz worktops, Bosch appliances including an integrated fridge/freezer, integrated oven, microwave and dishwasher, along with a modern bathrooms with top-quality floor tiling and a fully turfed garden. This is an energy efficient home with a projected EPC A rating which will result in low energy bills, the home also features an air source heat pump, underfloor heating to the ground floor, energy-saving solar panels and a wall mounted EV charger.

ABOUT CASTLE VIEW COURT
Castle View Court offers a stunning collection of four luxury new homes built to exacting standards with high-specification internal and external features. Located in the quintessential North Yorkshire village of Sheriff Hutton, near York, Castle View Court is walking distance from the bustling village centre with its many amenities as well as being just 10 miles from the historic city of York.

SHERIFF HUTTON
Sheriff Hutton is a peaceful rural village with a strong community spirit. The village benefits from a village shop and post office, a popular and traditional pub and deli/coffee shop specialising in local produce. There are also numerous sporting and community activities including tennis, cricket, badminton, yoga and Pilates as well as a gardening club and a pre-school playgroup and toddler group to name but a few.

Sheriff Hutton is in a fantastic location with great access to the city, the coast and the beautiful Yorkshire countryside. The historic city of York is just a few miles away and the North York Moors with the coastal towns of Bridlington and Filey within easy reach. The market town of Malton, with its fantastic local food markets is only 8.5 miles away whilst Castle Howard is less than 6 miles away. There are also many lovely countryside walks around the village and surrounding area.

This charming North Yorkshire village is steeped in history, the 14th Century castle built by John Neville later became home to the infamous Richard III. The castle eventually fell into ruin and the spectacular ruins dominate the vista from each of the plots at Castle View Court. St Helen’s Church dates from Norman times and the medieval stocks are still in place on the village green.

Sheriff Hutton is on the cusp of the Howardian Hills and close to the North York Moors. The village is conveniently located just 10 miles north of York and 10 miles from Malton. It is also close to the A64 York-Scarborough road making it an ideal commuter village with access to nearby towns and cities.

ABOUT WHARFEDALE HOMES
Wharfedale Homes specialises in developing design-led, high-quality homes for purchasers seeking a blend of individuality and craftsmanship. They create unique developments which are carefully designed to blend sympathetically into their local environment.

Wharfedale Homes offer outstanding levels of specification and finish, internally and externally which harmonise to create exceptional places to live.
Property Ref : 2748
Photographs
Floorplans
Print this Property
Additonal Information
Tenure: Freehold
Estimated EPC Rating: A
Council Tax Band: Not Currently Known
Internal Area: 200.00 Square Metres
Max. Broadband Speed (estimated): 1000 Mbps
Mains Gas: Yes
Mains Water: Yes
Mains Drainage: Yes
Mains Electricity: Yes
Property Reference: 2748
GDPR: By submitting an enquiry, you consent to your information being shared with the seller of this property or the agent representing the property. Your details will only be used to respond to your enquiry and arrange viewings or provide further information.
Property Questionnaire
Tenure
All information in this property questionnaire has been provided by the vendor.
Freehold
Leasehold
Share of Freehold
Estate Management Charge (where applicable)
Lease Details:
Ground Rent
Service charge
Start Date
Duration
years
Is the Freehold owned by the Resident Association?
No
Yes
Are you aware of any impending increases?
No
Yes
Previous year's service charge?
Is the property shared ownership?
No
Yes
Who owns the freehold?
What percentage share of the property are you selling?
%
What rent do you pay for the balance?
per annum
Services
Map View
Street View
Local Info
None
All
Dentist
Doctor
Hospital
Train
Bus
Cemetery
Cinema
Gym
Bar
Restaurant
Supermarket
Energy Performance Certificate
The full EPC chart is available either by contacting the office number listed below, or by downloading the Property Brochure
Energy Efficency Rating
CURRENT
G
(10)
POTENTIAL
G
(10)
Energy Efficency Rating
Current
Potential
(92+)
A
(81 to 91)
B
(69 to 80)
C
(55 to 68)
D
(39 to 54)
E
(21 to 38)
F
(1 to 20)
G
10
10
England & Wales
EU Directive 2002/91/EC
The energy efficiency rating is a measure of the overall efficiency of a home. The higher the rating the more energy efficient the home is and the lower the fuel bills will be.
Part of.. "Castle View Court"
Castle View Court offers a stunning collection of six luxury new homes built to exacting standards with high-specification internal and external features.
Professional Contact Request Close

If you are a company representative or professional wishing to contact the vendor of this property in relation on an on-going sale, simply complete the form below. Please note that all communication is monitored and logged. No unsolicited contact is permitted.

  Request Contact
Cancel
Logging your message..
Your message and contact details have been forwarded to the Seller.
  Continue
Oops! Please try again.
  Try Again
Share this Property! Close
Castle View Court, Sheriff Hutton (Orchard House) Share with all of your friends & followers using the social media options above, or with a single friend using the form below
  Share
Cancel
By clicking send you agree to our privacy policy?
Sending your friend an email..
Success! Please ask your friend to check their email.
  Continue
Oops! Please try again, or contact us and we will send your friend a printed brochure.
  Try Again
Get in Touch! Close

Have a question? Send the Seller a message and let you know when they reply

  Send
Cancel
Sending your message..
We will let you know when the Seller replies
  Continue
Oops! Please try again.
  Try Again
Book a Viewing Cancel
FORM HERE
Thursday 21st January
7:30pm > 8:00pm
Requesting your viewing..
Your appointment has been requested, but requires confirmation by the property representitive.
Thursday 21st January
7:30pm > 8:00pm
Your appointment has been confirmed.
Thursday 21st January
7:30pm > 8:00pm
We couldn't secure that appointment. Please try selecting an alternative date / time.
Continue
Back
Confirm
Continue
Back
Request a Brochure Close
Castle View Court To receive a PDF brocure for Castle View Court, simply fill in your details below.
  Request
Cancel
By clicking submit you agree to our privacy policy?
Sending your request..
Many thanks. Your brochure download link for Castle View Court should arrive in your inbox shortly.
  Continue
Oops! Please try again, or contact us using the details below.
  Try Again
Mortgage Calculator Close